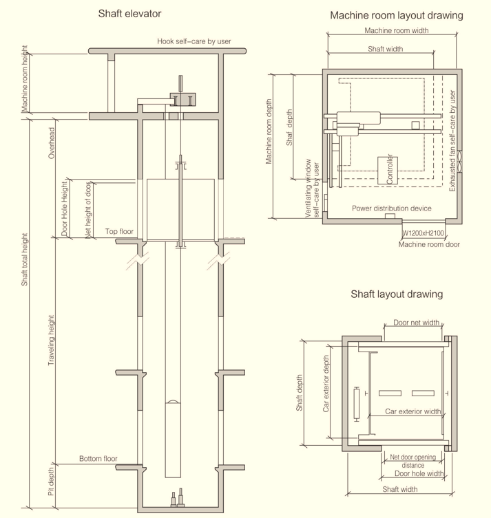
Freight Elevator Construction Layout Drawing

Freight Elevator Ensure Safe Transportation

Series freight elevator, using the advanced permanent magnet synchronous gearless traction technology, reasonable design, without room; the traction machine has the advantage of light weight, small volume, saving the architectural space, greatly improve the performance and quality of machine room less elevator, reduce energy consumption, the failure rate

Car Elevator Let Car Ride Comfortably

Car elevator, take full account of the large volume of automotive products, large load, the use of large-load asynchronous traction machine and the exchange frequency control speed control system, stable statically indeterminate steel structure system, can withstand the car out of the car caused a huge partial force of the impact force, from the fundamental guarantee of safety performance

IC card managenment

sers can control the certain floors with this card

Voice announcer

Voice announcement for running situation

Automatic rescue device(ARD)

The elevator will automatically run to the nearest door zone when the power supply fails

Advance door opening

In process of leveling, the distance is right, and the speed is little than the regulated one, the door will open in advance

Arrival forecasting light

Flashing when the elevator is leveing, to remind the passenger that it will landing.

Arrival chime

It can ring when the elevator is landing

Remote monitoring

It can monitoring the running situation of elevator

Earthquake shutdown function

When the earthquake device is moving, the elevator will landing ai the nearest floor, and open the door.

Fireman operation

Firemen can use this elevator to travel to destination without responding to calling outside.

Self re leveling

When the leveling is not accurate. it will re leveling automatically.

Sub control panel

It just like the main accurate, it will re leveling automatically.

Rear car operational panel

It control the rear opening and close.

The handicapped car operational panel

It specially desingned for the handicapped people.

Group control

Through the group control to coordinate the running of many elevator.

The service for the rush hour of go to work

Only for group control, when the elevator runs up from home floor with 3 more instructons, and other elevator in response to instructions and calls will automatically return to home floor and open doors

Bypass Operation

Elevator will Travel directly to destination without stopping

The service for the rush hour of off work

Only for group control, when the elevator runs comes down from home floor with 3 more instructons. andother elevator in response to instructions and calls will automatically return to home floor and open doors.

Dispersed waiting

Only for group control, when the elevator stops running in a specifiled time, the elevator will return to the pre setting floor to shorten the call time for warious floors to improve efficiency

Isolated control of front and rear door

There are two kinds: one is the rear car operational board, the other is the call box outside the rear door

Anti nuisance operation

It can cancel the disturbance instruction

VIP service

It can cancel all the instruction and call until the VIP arrives the certain stop without any other stop

Door remaining open function

Keep press the door open button to delay of door closing

LCD indicator

It can clearly indicate the floors and other information