Small Machine Room Passenger Elevator

Machine room

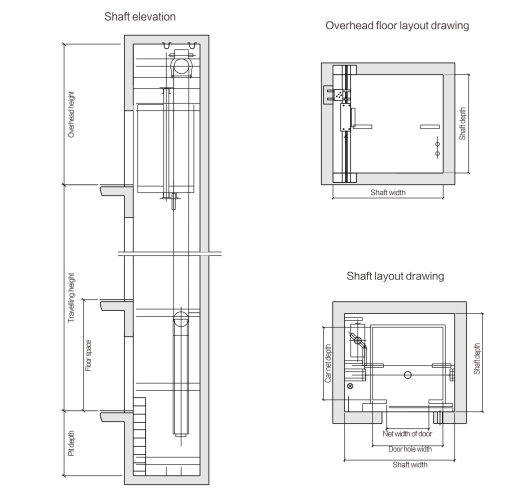
Small machine room passenger elevator only has about 65% ~ 70% of the traditional machine room. It greatly saves building space and material. Control Caret in machine room is designed into single-face inspection layout. The host bearing beam can also be used as hitch plate .It largely saves the machine room space. Compared with the traditional elevators, under the premise of ensuring the repairers' operation space which is stipulated by the national standard, it effectively controls the machine room height. The intensive space effect grants more freedom for the architects. it expand are the larger space utilization to the construction, perfectly merges the well space with the architectural style

Machine Roomless Passenger Elevator

Machine room Less

Blended into the construction, easily and leisurely Machine roomless passenger elevator need only one independent hoist-way and do not need the presence of machine rooms. Architects and develop-ers are allowed to conduct designing in a freer way.

Standard Function

Full Collective Control

Controller will automatically select the nearest elevator responding passenger's call.

Inspection Operation

Automatically moves to the nearest leveling at a slow speed.

Automatic Backplane

In normal condition, the elevator will automatically move to the nearest leveling in a slow speed.

Automatic Door Opening

elevator opens the door automatically.

Automatic Door Opening Time Adjustment

Door Remaining Open for a Short Time in normal Condition

Door Opening Button (external)

Door Remaining Open When the Door Opening Button was Paused on

Door Pre Closing Function

To Make Door Close Immediately in normal Opening Condition

Door Opening Button Internal

To Make Door Open or Re Open When elevator Stops

Full Load bypass

When the Elevator is Fully Loaded.It will travel to destination without respondingto calling outside

Automatic Turn Off Lighting and Fan

Lighting and Fan will Cut Off Power Automatically without any call or indication in 3 minutes.

Automatic return to home Landing

In normal condition, The Elevator will return to home landing without any more calls or indications

Door Re Closing

The Door will try to close again when it's blocked

Error recording

Mainboard can record 10 errors at most

Hostway Self Learning

Elevator can learn the data and situation automatically before using

Attendant Service

The Lift is close by continued pressing close buttons

Bypass Operation

Elevator will Travel directly to destination without stopping

Automatic correction of floor Position Signal

Self Correcting the Data when the elevator reach final limit Switch

Lift Locking

Lock the Elevator and turn off the power so that no one can use it

Protection Of Door Lockup outside door area

No door opening when it is not in leveling position

Infrared light curtain Protection

Door Will opening when it is blocked

Overload Protection

Elevator Refure to travel with buzz when it is Overloaded

Reversal running Protection

When the running direction is different with destination direction, it stops automatically

Anti skip Protection

Travelling a long time without door opening, it will stop automatically

Anti terminal over running Protection

Security Risks are prevented by preventing the continued operation of the failure of the terminal Switch

Phase Protection

Stop to move when the final limit Switch fails to have function

Contactor Protection

Stop running when safety devices conflict

Failure analysis of shaft self learn

When the shaft learned by itself that it doesn't finised it correctly

Motor temperature Protection

Protect the motor from being over heat

Door Opening failure Protection

Stop running when error happens to door

Protection For Door lock short circuit

Elevator refuse to move when error suddenly happens to the brake

Door lock failure for brake switches

Elevator will stop at once when error suddenly happens to door lock

Over speed Protection

In case of elevator running too fast

Contact Protection for brake switches

Protect the elevator when error happens to the brake

Five-party interphone communication

communication for machine room, car top, car cage, pit and inspection station

Wheeling Protection

Safety Protection is rescuing

Alarm bell

When the anomaly occured, passenger in the cabin can notice the outside with this device

Emergency lighting

When the power supply is failure, it can provide the lighting of the car

Two doors operator

Only for opening through door opening type

Level Switch Protection

It is a safety Protection in case of the trouble in leveling switch

False call cancelling

When the passengers press the false button. It can cancel the call through the two times press

Automatic Reversal Call cancelling

When the running direction is different with destination direction. It stops automatically

Floor display directional setup

Directional Setup of service floor

Isolate Running

operation similar to Attendant service function

Segment code or dot matrix floor indicator

The indicator displayed in matrix type

Rolling display of running direction

The running direction display in a rolling way

Forced Door closing

The door nudging device will force the door closing when it open too long

CAN communication Protection

Prevent the danger in case of trouble

Arrival gong

Sound to indicate leveling is finished

Emergency return in case of fire

The elevator will return to home floor in a short time when fire Emergency happens

Main control Protection

Stop the running of the elevator in case of trouble

Main control CPU WDT Protection

When test the trouble of CPU, WDT make it reset

Discretional setup of service floor

Using the operator to setup the landing floor discretionaly

Test Running

It is used for testing the new elevator

Clock control

It can record the time of trouble and decide to stop at any floor

Direct landing

The efficiency of the elevator can be improved by the distance priniciple to deceleration

Load weighing Device

With such system, the elevator can self learn the data to improved the start up

Parallel Control

Two elevator through the CAN Serial communicationbus to coordinate the call

Protection Device for Accidental movement of the car

In case of Accidental movement that the car leaves the landing floor while the landing is unlocked as well as the car door keeps open, Protection device to prevent or stop such movement should be equipped

Bypass Protection

Bypass Protection provides safety Protection for daily maintenance